1. Hiện tượng
Hiện tượng: Kiểm tra hệ thống gạt mưa trên xe Honda Civic Si 2008, khi On chìa khóa cần gạt mưa quay liên tục, xong dừng sai vị trí.
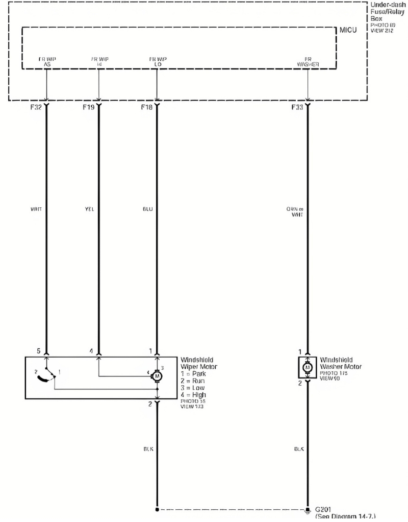
Hệ thống gồm các bộ phận:
- Cầu chì Fuse 10 7,5A, Fuse 38 30A hộp cầu chì trong xe (Under Dash Fuse/Relay)
- Công tắc điều khiển gạt mưa (Wiper/Washer Switch)
- Hộp MICU tích hợp bên trong hộp cầu chì trong xe
- Cụm mô tơ gạt mưa (Windshield Wiper Motor)
- Cụm mô tơ phun nước (Windshield Washer Motor)
- Dây dẫn điện và giắc nối,…
2. Sơ đồ mạch điện – Nguyên lý hoạt động

3. Nguyên lý hoạt động:
Nhìn vào sơ đồ mạch điện ta thấy mạch hệ thống gạt mưa trên xe Honda Civic Si 2008 là loại mạch điều khiển qua hộp MICU. Do đó, để hộp MICU hoạt động được và tốt thì cần phải được cấp nguồn đầy đủ.
Khi bật chế độ MIST (chế độ gạt một lần):
Nguồn âm đi từ chân số 4, giắc S của hộp hộp cầu chì trong xe 🡪 Chân số 5 của công tắc 🡪 Chân số 3 🡪 Chân số 15, giắc S của hộp cầu chì trong xe.
Lúc này, hộp hiểu đang muốn bật chế độ Mist nên sẽ điều khiển nguồn dương đi từ chân số 18, giắc F của hộp cầu chì trong xe 🡪 Chân số 1 của mô tơ 🡪 Mô tơ 🡪 Mass. Mô tơ gạt mưa gạt một lần do công tắc bật ở chế độ Mist.
Khi bật chế độ OFF:
Nguồn âm đi từ chân số 4, giắc S của hộp hộp cầu chì trong xe 🡪 Chân số 5 của công tắc. Nhưng lúc này tại công tắc không có tín hiệu nào gửi về hộp, vì vậy, hộp sẽ hiểu là công tắc đang ở chế độ off nên sẽ không điều khiển mô tơ gạt mưa.
Khi bật chế độ INT (chế độ ngắt quãng):
Nguồn âm đi từ chân số 4, giắc S của hộp hộp cầu chì trong xe 🡪 Chân số 5 của công tắc 🡪 Chân số 2 🡪 Chân số 10, giắc S của hộp cầu chì trong xe.
Lúc này, hộp hiểu đang muốn bật chế độ Int nên sẽ điều khiển nguồn dương đi từ chân số 18, giắc F của hộp cầu chì trong xe 🡪 Chân số 1 của mô tơ 🡪 Mô tơ 🡪 Mass. Mô tơ hoạt động ở chế độ ngắt quãng, thời gian ngắt quãng nhanh hay chậm phụ thuộc vào tín hiệu từ chân số 8 của công tắc 🡪 Chân số 6, giắc S của hộp cầu chì trong xe (tín hiệu điện trở).
Khi bật chế độ LOW (tốc độ chậm):
Nguồn âm đi từ chân số 4, giắc S của hộp hộp cầu chì trong xe 🡪 Chân số 5 của công tắc 🡪 Chân số 2 và chân số 4 của công tắc 🡪 Chân số 10 và chân số 20 giắc S của hộp cầu chì trong xe.
Lúc này, hộp hiểu đang muốn bật chế độ Low nên sẽ điều khiển nguồn dương đi từ chân số 18, giắc F của hộp cầu chì trong xe 🡪 Chân số 1 của mô tơ 🡪 Mô tơ 🡪 Mass. Mô tơ gạt mưa hoạt động ở tốc độ chậm
Khi bật chế độ HIGH (tốc độ nhanh):
Nguồn âm đi từ chân số 4, giắc S của hộp hộp cầu chì trong xe 🡪 Chân số 5 của công tắc 🡪 Chân số 4 của công tắc 🡪 Chân số 20 giắc S của hộp cầu chì trong xe.
Lúc này, hộp hiểu đang muốn bật chế độ High nên sẽ điều khiển nguồn dương đi từ chân số 19, giắc F của hộp cầu chì trong xe 🡪 Chân số 4 của mô tơ 🡪 Mô tơ 🡪 Mass. Mô tơ gạt mưa hoạt động ở tốc độ nhanh.
Khi bật chế độ WASHER (phun nước):
Nguồn âm đi từ chân số 4, giắc S của hộp hộp cầu chì trong xe 🡪 Chân số 5 của công tắc 🡪 Chân số 1 của công tắc 🡪 Chân số 17 giắc S của hộp cầu chì trong xe.
Lúc này, hộp hiểu đang muốn bật chế độ phun nước nên sẽ điều khiển dương đi từ chân 33, giắc F của hộp cầu chì trong xe 🡪 Mô tơ phun nước 🡪 Mass. Mô tơ phun nước hoạt động.
4. Khoanh vùng hư hỏng
Những nguyên nhân có thể dẫn đến hiện tượng trên:
– Mô tơ gạt mưa
– Hộp MICU, được tích hợp trong hợp cầu chì trong xe
– Dây dẫn điện
5. Kiểm tra chi tiết
- Mô tơ gạt mưa:
Thống số kiểm tra:
| Chế độ | Kiểm tra | Thông số |
| Mô tơ dừng đúng vị trí | Chân số 2 (E) – chân số 5 (S) | Dưới 1Ω |
| Mô tơ dừng sai vị trí | Chân số 2 (E) – chân số 5 (S) | 10k Ω hoặc cao hơn |
- Dây dẫn:
+ Dây S từ mô tơ gửi về hộp MICU
| Kiểm tra | Thông số |
| Chân F32 – Chân số 5 của mô tơ | Below 1Ω |
- Hộp MICU:
Khi mô tơ dừng đúng vị trí, mass sẽ đi qua chân số 2 của mô tơ 🡪 Chân số 5 🡪 Chân số 32, giắc F của hộp cầu chì trong xe. Vì vậy, khi hộp nhận tín hiệu mass tại đây, hộp sẽ khiển cho mô tơ dừng và dừng đúng vị trí (phía dưới mép kính lái).
Trường hợp khi chúng ta cho mô tơ dừng và đo được tại chân F32 đã có tín hiệu mass, nhưng lúc này hộp vẫn không điều khiển cho mô tơ dừng và dừng đúng vị trí, thì lúc này hộp MICU đang có vấn đề.
Bài viết của VATC đã trình bày chi tiết về hệ thống gạt mưa trên Honda Civic Si 2008. Hy vọng thông tin này giúp bạn hiểu rõ hơn về chiếc xe của mình, từ đó có thể xử lý hiệu quả các vấn đề liên quan đến gạt mưa, đảm bảo tầm nhìn tốt trong mọi điều kiện thời tiết.
Xem thêm:
- Hướng dẫn cách vệ sinh van PCV 8 bước cơ bản chi tiết nhất
- Trục các đăng là gì? Cấu tạo và nguyên lý hoạt động của chúng
Trung Tâm Huấn Luyện Kỹ Thuật Ô Tô Việt Nam – VATC
- Địa chỉ: Số 4-6, Đường số 4, Phường Hiệp Bình Phước, Thành Phố Thủ Đức, Thành phố Hồ Chí Minh
- Điện thoại: 0945711717
- Email: info@oto.edu.vn


3. Nguyên lý hoạt động: 