Kiến thức ô tô hôm nay, cùng trung tâm VATC tìm hiểu chủ đề: Kiểm tra hệ thống nâng hạ kính xe Honda Civic Si 2008 không hoạt động ở tất cả các cửa. Đọc đến hết bài viết để không bỏ lỡ bất kỳ chi tiết hữu ích nào nhé!
1. Hiện tượng
Hiện tượng: Kiểm tra hệ thống nâng hạ kính xe Honda Civic Si 2008 không hoạt động ở tất cả các cửa.
Hệ thống gồm các bộ phận:
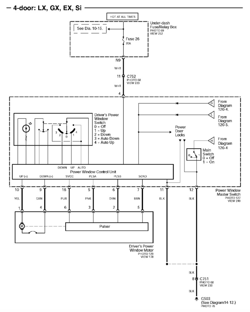
- Cầu chì Fuse 26, Fuse 30, Fuse 32, Fuse 33 20A hộp cầu chì trong xe (Under Dash Fuse/Relay)
- Công tắc nâng hạ kính tổng – cửa tài (Power Window Master Switch)
- Mô tơ nâng hạ kính cửa tài (Driver’s Power Window Motor)
- Relay nâng hạ kính, tích hợp trong hộp cầu chì trong xe (Under Dash Fuse/Relay)
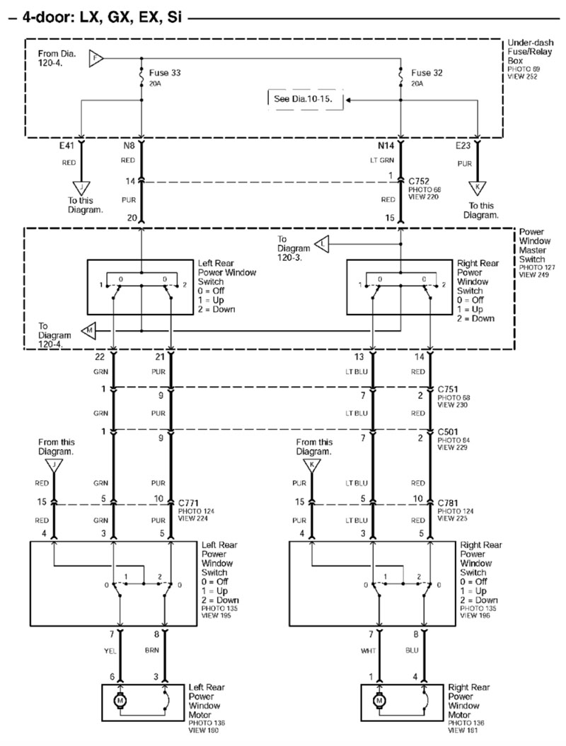
- Công tắc nâng hạ kính trước phụ (Front Passenger’s Power Switch), sau phụ (Right Rear Power Window Switch) và sau tài (Left Rear Power Window Switch)
- Mô tơ nâng hạ kính trước phụ (Front Passenger’s Power Motor), sau phụ (Right Rear Power Window Motor) và sau tài (Left Rear Power Window Motor)
- Dây dẫn điện và giắc nối,…
2. Sơ đồ mạch điện – Nguyên lý hoạt động

3. Nguyên lý hoạt động:
Để công tắc chính (công tắc tài) hoạt động bình thường và ổn định thì công tắc tài cần được cấp đủ nguồn:
– Nguồn dương: Chân số 3, 4, 15 và 20.
– Nguồn âm: Chân 11, 12.
Khi công tắc tài (Power Window Master Switch) điểu khiển mô tơ cửa tài (Driver’s Power Window Motor):
- Điều khiển cửa tài đi lên (UP): Nguồn dương đi từ chân số 10 của công tắc 🡪 Chân số 1 mô tơ cửa tài 🡪 Mô tơ 🡪 Chân số 4 mô tơ cửa tài 🡪 Chân số 9 của công tắc (khi được cấp đủ nguồn, tại công tắc chân số 10 sẽ xuất dương và chân số 9 sẽ xuất âm). Mô tơ cửa tài đi lên.
- Điều khiển cửa tài đi xuống (DOWN): Nguồn dương đi từ chân số 9 của công tắc 🡪 Chân số 4 mô tơ cửa tài 🡪 Mô tơ 🡪 Chân số 1 mô tơ cửa tài 🡪 Chân số 10 của công tắc (khi được cấp đủ nguồn, tại công tắc chân số 9 sẽ xuất dương và chân số 10 sẽ xuất âm). Mô tơ cửa tài đi xuống.
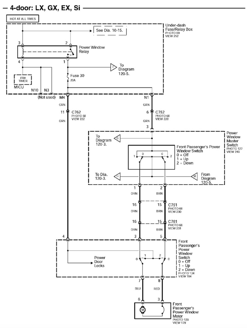
Khi công tắc tài (Power Window Master Switch) điểu khiển mô tơ cửa trước phụ (Front Passenger’s Power Motor):
- Khi điều khiển cửa trước phụ đi lên (UP): Nguồn dương đi từ chân số 1 của công tắc tài 🡪 Chân số 3 của công tắc trước phụ 🡪 Chân số 7 🡪 Chân số 6 mô tơ cửa trước phụ 🡪 Chân số 3 🡪 Chân số 8 công tắc trước phụ 🡪 Chân số 5 🡪 Chân số 2 công tắc tài 🡪 Mass. Mô tơ cửa trước phụ đi lên
- Khi điều khiển cửa phụ đi xuống (DOWN): Nguồn dương đi từ chân số 2 của công tắc tài 🡪 Chân số 5 của công tắc trước phụ 🡪 Chân số 8 🡪 Chân số 3 mô tơ cửa trước phụ 🡪 Chân số 6 🡪 Chân số 7 công tắc trước phụ 🡪 Chân số 3 🡪 Chân số 1 công tắc tài 🡪 Mass. Mô tơ cửa trước phụ đi xuống
Khi công tắc trước phụ (Front Passenger’s Power Switch) điểu khiển mô tơ cửa trước phụ (Front Passenger’s Power Motor):
- Khi điều khiển cửa trước phụ đi lên (UP): Nguồn dương đi từ chân số 4, giắc M của hộp cầu chì trong xe 🡪 Chân số 4 công tắc trước phụ 🡪 Chân số 7 🡪 Chân số 6 mô tơ 🡪 Chân số 3 🡪 Chân số 8 công tắc trước phụ 🡪 Chân số 5 🡪 Chân số 2 công tắc tài 🡪 Mass. Mô tơ cửa trước phụ đi lên
- Khi điều khiển cửa phụ đi xuống (DOWN): Nguồn dương đi từ chân số 4, giắc M của hộp cầu chì trong xe 🡪 Chân số 4 công tắc trước phụ 🡪 Chân số 8 🡪 Chân số 3 mô tơ 🡪 Chân số 6 🡪 Chân số 7 công tắc trước phụ 🡪 Chân số 3 🡪 Chân số 1 công tắc tài 🡪 Mass. Mô tơ cửa trước phụ đi xuống
4. Khoanh vùng hư hỏng
Những nguyên nhân có thể dẫn đến hiện tượng trên:
– Cầu chì Fuse 26, Fuse 30, Fuse 32 và Fuse 33.
– Dây dẫn điện.
5. Kiểm tra chi tiết
- Kiểm tra cầu chì: vị trí của các cầu chì trên hộp cầu chì trong xe

- Dây dẫn:
Thống số kiểm tra:
| Kiểm tra | Thông số |
| View 249 – 4 và N9 | Dưới 1Ω |
| View 249 – 3 và N1 | Dưới 1Ω |
| View 249 – 20 và N8 | Dưới 1Ω |
| View 249 – 15 và N14 | Dưới 1Ω |
| Kiểm tra | Thông số |
| View 249 – 11 và G503 | Dưới 1Ω |
| View 249 – 12 và G503 | Dưới 1Ω |
Bài viết của VATC đã cung cấp thông tin chi tiết về hệ thống nâng hạ kính trên xe Honda Civic Si 2008. Hy vọng bạn đã nắm được cấu tạo, nguyên lý hoạt động và các vấn đề thường gặp của hệ thống này.
Trung Tâm Huấn Luyện Kỹ Thuật Ô Tô Việt Nam – VATC
- Địa chỉ: Số 4-6, Đường số 4, Phường Hiệp Bình Phước, Thành Phố Thủ Đức, Thành phố Hồ Chí Minh
- Điện thoại: 0945711717
- Email: info@oto.edu.vn
Xem thêm:

