KIẾN THỨC Ô TÔ

Kiểm tra áp suất gas điều hòa không khí bằng bộ đồng hồ đo áp suất gas
Bơm tiếp vận
Bơm cao áp ô tô là gì? Phân loại các bơm cao áp phổ biến hiện nay
TOYOTA VENZA 2010 hệ thống gạt mưa phía trước bị mất chế độ INT
Hệ thống màn hình hiển thị trên kính chắn gió Head-Up Display (màn hình HUD)
Mã lỗi B2A23: FORD FOCUS 2008. DTC B2A23: High Beam Input Circuit Short to Ground
Mã lỗi B1079: HONDA CIVIC SI 2008. DTC 1079: Daytime Running Lights Signal Error
Kiểm tra hệ thống gạt mưa trên xe Honda Civic Si 2008, khi on chìa khóa cần gạt mưa quay liên tục, xong dừng sai vị trí (các chế độ hoạt động bình thường)
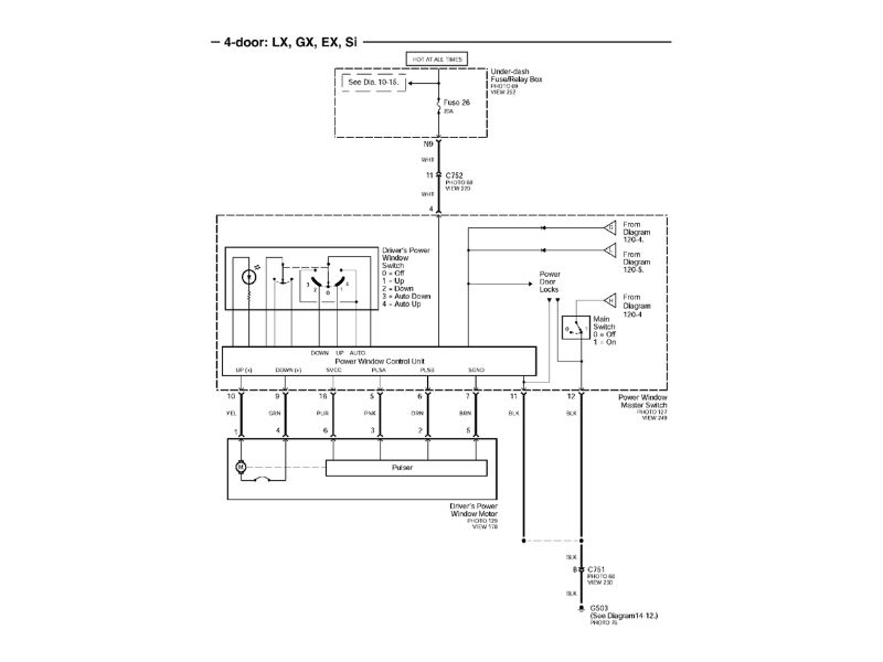
Kiểm tra hệ thống nâng hạ kính xe Honda Civic Si 2008 không hoạt động ở tất cả các cửa
Kiểm tra hệ thống đèn phanh xe TOYOTA CAMRY 2008 không hoạt động
Xả gió trong hệ thống lái trợ lực điện – thủy lực
Hướng dẫn thay dầu trợ lực lái